ZG電磁振動給煤機說明書
ZG電磁振動給煤機
ZG電磁振動給煤機|
ZG系列電磁振動給煤機型號規格:ZG-20、ZG-50、ZG-100、ZG-200、ZG-300
一、產品用途
ZG系列電磁振動給煤機廣泛用于電力、煤炭、礦山、建材、化工、冶金等各部門中,用以把塊狀、顆粒狀及粉狀物料從貯料倉或漏斗中均勻連續或定量地給到磨煤機、分選機械、包裝機械等受料裝置中。
二、產品特點與結構
ZG系列電磁振動給煤機配備電源控制箱,可以無級調節給料量,配備自動穩幅控制箱,可不受電源電壓的波動,而使機器振幅穩定,且噪音降低,壽命延長,可靠性提高,同時還可以與計算機實現聯機,實現自動化智能給料。

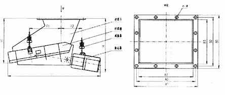
三、ZG系列電磁振動給煤機安裝說明圖:



三、ZG系列電磁振動給煤機安裝說明圖:

四、ZG電磁振動給煤機技術參數表:
| 規格型號 |
生產率 t/h |
最大給料粒度 mm |
振動次數 次/分 |
整體重量 |
雙振幅 mm |
配用電磁振動器 |
整機重量 kg |
||
| 規格 | 有功功率kW |
額定電流 A |
|||||||
| ZG-20 | 20 | 75 | 3000 | AC220 | 1.75 | DZ3 | 0.2 | 3.8 | 266 |
| ZG-50 | 50 | 100 | DZ4 | 0.45 | 7 | 497 | |||
| ZG-100 | 100 | 150 | DZ5 | 0.65 | 10.6 | 898 | |||
| ZG-200 | 200 | 200 | AC380 | 1.5 | DZ6 | 1.5 | 13.3 | 1750 | |
| ZG-300 | 300 | 300 | DZ7 | 2.5 | 20 | 2300 | |||
五、ZG電磁振動給煤機尺寸表:
| 代號 | A×A | B×B | C×C | D1 | D2 | D3 | G | L | H | n1-Φ1 | n2-Φ2 | F1 | F2 | 減振器開檔 | |
| 前 | 后 | ||||||||||||||
| ZD-20 | 480 | 435 | 380 | Φ325 | Φ385 | Φ425 | 800 | 1470 | 900 | 12-14 | 12-14 | 535 | 310 | 518 | 518 |
| ZD-50 | 595 | 540 | 480 | Φ426 | Φ490 | Φ528 | 1100 | 2000 | 1100 | 12-18 | 12-18 | 560 | 538 | 640 | 620 |
| ZD-100 | 845 | 800 | 720 | Φ630 | Φ700 | Φ745 | 1250 | 2400 | 1415 | 16-18 | 16-18 | 470 | 580 | 930 | 750 |
| 代號 | A1 | A2 | A3 | B1 | B2 | B3 | N-Φ | H1 | H | L | F1 | F2 | 減振器開檔 | |
| 前 | 后 | |||||||||||||
| ZG-200 | 1140 | 1060 | 960 | 1180 | 270×4=1080 | 980 | 16-18 | 1050 | 1350 | 2450 | 880 | 510 | 1197 | 720 |
| ZG-300 | 595 | 540 | 480 | 1640 | 260×6=1560 | 1460 | 20-18 | 1062 | 1490 | 2650 | 850 | 680 | 1677 | 840 |
卓力工礦是國內知名ZG電磁振動給煤機生產廠家,有豐富的經驗為客戶提供高品質的ZG電磁振動給煤機及完善的售后服務,如果您想了解最新ZG電磁振動給煤機價格或者更詳細信息,歡迎撥打服務熱線:
13280082001 18605374511.或者聯系在線客服:
點擊這里、立刻咨詢;我們攜程為您服務!
常見問題:ZG電磁振動給煤機發貨時間? ZG電磁振動給煤機售后保障? ZG電磁振動給煤機訂貨需要提供什么信息?
產品標簽:ZG電磁振動給煤機| |

鐵路設備
運轉設備
鉆采設備
噴漿支護
提升設備
防爆電器
礦用電氣
通防設備
救援設備
化工設備
路面建筑
園林機械
節能環保設備
水利機械
泵類
電機



















