DYTZ型整體直式電液推桿(450~20000)說明書
DYTZ型整體直式電液推桿(450~20000)
DYTZ型整體直式電液推桿(450~20000)|dytz電液推桿
DYTZ型整體直式電液推桿,在閘閥類、輸送設備類是不可缺少的通用動力源,廣泛應用冶金、礦山、煤炭、店里、機械、糧食、水泥、化工、水利、運輸等行業。
電液推桿主要是由推桿的型式、電機的防護等級、額定輸出力、行程、額定速度和使用角度等六大基本要素組成,還可根據用戶特殊要求,配套三種調節功能,即:速度調節、推拉力調節,行程調節(行程開關定位)。除了上述三種調節功能訂貨時必須文字注明外,其它請參照型號編制方式認真填寫六大基本要素。
DYTZ型整體直式電液推桿型號編制方式
以“DYTZB1000-500/110-X型電液推桿”為例,分別說明如何選型和型號編制的方式。
如何選型:某一場所需要一臺整體直式的電液推桿,要求電機防爆,其最大推力10kn,行程500mm最大速度110mm/s,使用角度向下推,那么所選電液推桿的標準型號為:DYTZB1000-500/110-X.(B為防爆標記,X表示向下推)
例:DYTZB1000-500/110-X型電液推桿
DYT-電液推桿
Z-整體直式
B-防爆
1000-最大推力10kn
500-行程
110-最大推速
X-向下推
DYTZ型整體直式電液推桿技術參數(選型表)
| 型號 | 額定輸出力(kgf) | 額定速度(mm/s) | 電機型號 | 行程范圍(mm) | 速度范圍(mm) | ||
| 推力*10 | 拉力 | 推速 | 拉速 | ||||
| DYTZ450- | 450 | 310 | 110 | 140 | Y802-4-0.75KW | 50-800 | 30-110 |
| DYTZ700- | 700 | 510 | 110 | 140 | Y90S-4-1.1KW | 50-1500 | 30-110 |
| DYTZ1000- | 1000 | 750 | 110 | 140 | Y90L-4-1.5KW | 50-1500 | 30-110 |
| DYTZ1750- | 1750 | 1300 | 90 | 115 | Y100L1-4-2.2KW | 50-2000 | 10-90 |
| DYTZ2500- | 2500 | 2050 | 90 | 115 | Y100L2-4-3KW | 50-2000 | 10-90 |
| DYTZ3000- | 3000 | 2500 | 90 | 115 | Y100L2-4-3KW | 50-2000 | 10-90 |
| DYTZ4000- | 4000 | 2950 | 90 | 115 | Y112M-4-4KW | 50-2000 | 10-90 |
| DYTZ5000- | 5000 | 3300 | 90 | 115 | Y132S-4-5.5KW | 50-2000 | 10-90 |
| DYTZ6000- | 6000 | 3800 | 50 | 80 | Y112M-4-4KW | 50-2500 | 5-50 |
| DYTZ7000- | 7000 | 4500 | 50 | 75 | Y112M-4-4KW | 50-2500 | 5-50 |
| DYTZ8000- | 8000 | 5000 | 50 | 80 | Y132S-4-5.5KW | 50-2500 | 5-50 |
| DYTZ10000- | 10000 | 6500 | 40 | 60 | Y132S-4-5.5KW | 50-2500 | 5-40 |
| DYTZ15000- | 15000 | 11000 | 40 | 55 | Y132M-4-7.5KW | 50-2500 | 5-40 |
| DYTZ20000- | 20000 | 15000 | 40 | 50 | Y132M-4-11KW | 50-2500 | 5-40 |
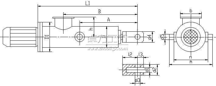
DYTZ型整體直式電液推桿尺寸外形圖

(外形圖僅供參考,產品請以實物為準)
DYTZ型整體直式電液推桿外形尺寸及安裝尺寸
| 型號 | 外形尺寸 | |||||||||||
| L | L1 | B | D | D1 | b | h | ||||||
| DYTZ450- | 880+S | 635+S | 375+S | 160 | 200 | 160 | 140 | |||||
| DYTZ700- | 895+S | 635+S | 375+S | 160 | 200 | 160 | 140 | |||||
| DYTZ1000- | 920+S | 635+S | 375+S | 160 | 200 | 160 | 140 | |||||
| DYTZ1750- | 990+S | 670+S | 400+S | 160 | 250 | 160 | 140 | |||||
| DYTZ2500- | 990+S | 670+S | 400+S | 160 | 250 | 160 | 140 | |||||
| DYTZ3000- | 990+S | 670+S | 400+S | 160 | 250 | 160 | 140 | |||||
| DYTZ4000- | 1010+S | 690+S | 420+S | 160 | 250 | 160 | 140 | |||||
| DYTZ5000- | 1055+S | 715+S | 445+S | 160 | 300 | 160 | 140 | |||||
| DYTZ6000- | 1075+S | 735+S | 465+S | 200 | 250 | 200 | 160 | |||||
| DYTZ7000- | 1075+S | 735+S | 465+S | 200 | 250 | 200 | 160 | |||||
| DYTZ8000- | 1095+S | 755+S | 485+S | 200 | 300 | 200 | 160 | |||||
| DYTZ10000- | 1190+S | 795+S | 505+S | 220 | 300 | 220 | 170 | |||||
| DYTZ15000- | 1270+S | 835+S | 545+S | 240 | 300 | 220 | 180 | |||||
| DYTZ20000- | 1470+S | 930+S | 600+S | 260 | 350 | 240 | 190 | |||||
| 安裝尺寸 | ||||||||||||
| A | l2 | l3 | d1 | d2 | d3 | d4 | d5 | n | m | |||
| DYTZ450- | 620+S/2 | 60 | 20 | 36 | 60 | 16 | 50 | 30 | 180 | 240 | ||
| DYTZ700- | 620+S/2 | 60 | 20 | 36 | 60 | 16 | 50 | 30 | 180 | 240 | ||
| DYTZ1000- | 620+S/2 | 60 | 20 | 36 | 60 | 16 | 50 | 30 | 180 | 240 | ||
| DYTZ1750- | 650+S/2 | 70 | 20 | 40 | 64 | 20 | 50 | 30 | 180 | 240 | ||
| DYTZ2500- | 650+S/2 | 70 | 20 | 40 | 64 | 20 | 50 | 30 | 180 | 240 | ||
| DYTZ3000- | 670+S/2 | 70 | 20 | 40 | 64 | 20 | 50 | 30 | 180 | 240 | ||
| DYTZ4000- | 670+S/2 | 70 | 20 | 40 | 64 | 20 | 50 | 40 | 180 | 240 | ||
| DYTZ5000- | 670+S/2 | 70 | 20 | 40 | 64 | 20 | 50 | 40 | 180 | 240 | ||
| DYTZ6000- | 700+S/2 | 65 | 25 | 40 | 72 | 25 | 60 | 50 | 240 | 340 | ||
| DYTZ7000- | 700+S/2 | 65 | 25 | 40 | 72 | 25 | 60 | 50 | 240 | 340 | ||
| DYTZ8000- | 700+S/2 | 65 | 25 | 40 | 72 | 25 | 60 | 50 | 240 | 340 | ||
| DYTZ10000- | 700+S/2 | 65 | 25 | 40 | 72 | 25 | 60 | 60 | 260 | 360 | ||
| DYTZ15000- | 700+S/2 | 75 | 30 | 50 | 90 | 30 | 70 | 60 | 280 | 400 | ||
| DYTZ20000- | 750+S/2 | 100 | 40 | 60 | 110 | 40 | 90 | 60 | 320 | 440 | ||
卓力工礦是國內知名DYTZ型整體直式電液推桿(450~20000)生產廠家,有豐富的經驗為客戶提供高品質的DYTZ型整體直式電液推桿(450~20000)及完善的售后服務,如果您想了解最新DYTZ型整體直式電液推桿(450~20000)價格或者更詳細信息,歡迎撥打服務熱線:
13280082001 18605374511.或者聯系在線客服:
點擊這里、立刻咨詢;我們攜程為您服務!
常見問題:DYTZ型整體直式電液推桿(450~20000)發貨時間? DYTZ型整體直式電液推桿(450~20000)售后保障? DYTZ型整體直式電液推桿(450~20000)訂貨需要提供什么信息?
產品標簽:DYTZ型整體直式電液推桿(450~20000)|
dytz電液推桿
|
上一篇:電液推桿
下一篇:DYTP型平行式電液推桿(450-20000)

鐵路設備
運轉設備
鉆采設備
噴漿支護
提升設備
防爆電器
礦用電氣
通防設備
救援設備
化工設備
路面建筑
園林機械
節能環保設備
水利機械
泵類
電機


















